Cliente
Familia Hern谩ndez
Servicio
Localizaci贸n
Santander, Colombia
Proyecto de casa colonial en Colombia de dos niveles con 355 m虏 de construcci贸n en un terreno de 9.5 x 30 metros. La vivienda integra patio central, balc贸n colonial, cuatro dormitorios y espacios sociales amplios que combinan tradici贸n arquitect贸nica con dise帽o contempor谩neo.

Este proyecto de casa colonial en Colombia es una vivienda unifamiliar de dos niveles con 355 m虏 de construcci贸n, dise帽ada para reinterpretar la arquitectura colonial latinoamericana mediante espacios funcionales, elegantes y conectados con la naturaleza. La casa se construye en un terreno de 9.5 x 30 metros, donde el dise帽o aprovecha la profundidad del lote para organizar 谩reas sociales amplias, un patio interior y zonas privadas confortables.
Desde el punto de vista arquitect贸nico, el proyecto busca combinar tradici贸n y contemporaneidad. Por ello, se incorporan elementos caracter铆sticos del estilo colonial, como cubiertas inclinadas con teja, balcones con herrer铆a, carpinter铆a de madera y patios interiores que favorecen la ventilaci贸n y la iluminaci贸n natural.
Fachada con identidad colonial

La fachada principal de esta casa colonial en Colombia destaca por su composici贸n equilibrada y elegante. El acceso se jerarquiza mediante un p贸rtico que genera profundidad y presencia arquitect贸nica, mientras que el balc贸n del segundo nivel aporta car谩cter al conjunto y refuerza el lenguaje colonial del proyecto.
Adem谩s, la casa integra una cochera dentro del volumen principal, lo que permite mantener una imagen ordenada hacia la calle. Los tonos claros en los muros ayudan a reflejar la luz natural y resaltan los detalles arquitect贸nicos, mientras que la cubierta de teja en tonos c谩lidos aporta textura y tradici贸n.


Entre los elementos m谩s representativos de la fachada se encuentran: balc贸n con barandal de hierro y vegetaci贸n, cubierta inclinada de teja, carpinter铆a en madera natural, acceso principal con p贸rtico, integraci贸n arm贸nica con el entorno urbano. Gracias a estos elementos, la casa transmite una identidad arquitect贸nica s贸lida y atemporal.
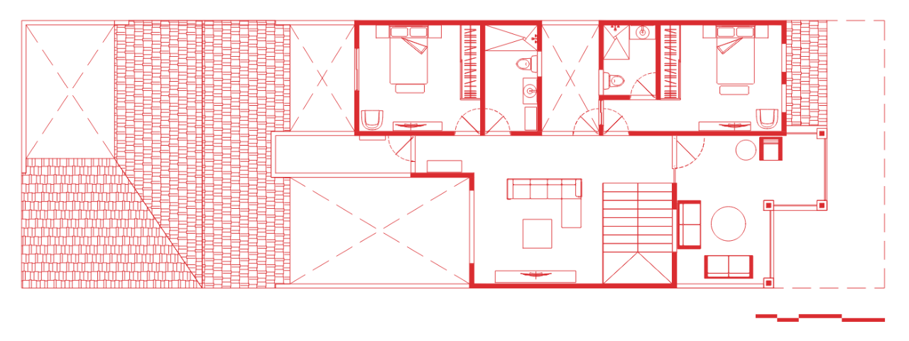
Planta baja: espacios sociales conectados

La planta baja se dise帽贸 para albergar las 谩reas sociales de la casa, priorizando la amplitud, la iluminaci贸n natural y la relaci贸n con el patio interior. Al ingresar a la casa, se encuentra un vest铆bulo que conduce hacia la sala principal, el comedor y la cocina, creando una circulaci贸n clara y funcional.

Uno de los aspectos m谩s importantes del proyecto es el patio interior, que act煤a como el coraz贸n de la casa. Este espacio permite que la luz natural llegue a distintos puntos del proyecto y favorece la ventilaci贸n cruzada, generando ambientes m谩s frescos y agradables.

La distribuci贸n de la planta baja incluye:
- Sala principal con vista hacia el patio interior.
- Comedor familiar integrado.
- Cocina con isla central y almacenamiento amplio.
- Estudio o despacho privado.
- Ba帽o completo para visitas.
- Cochera para un veh铆culo.
- Jardines interiores que aportan iluminaci贸n y frescura.
- Patio de servicio junto a la cocina.
- Una rec谩mara de visitas.
- Una rec谩mara principal con ba帽o y vestidor privados.
Gracias a esta organizaci贸n, la planta baja se convierte en un espacio ideal para la convivencia familiar.

Dise帽o interior: calidez y elegancia
El dise帽o interior de la casa combina materiales naturales con una est茅tica contempor谩nea. Los espacios est谩n pensados para transmitir confort y amplitud, utilizando tonos neutros, iluminaci贸n c谩lida y elementos decorativos que enriquecen la experiencia espacial.
La sala destaca por la integraci贸n con el patio interior y el uso de texturas como piedra y madera, mientras que la cocina se concibe como un espacio funcional y moderno, donde la isla central se convierte en un punto de reuni贸n para la familia.
Esta combinaci贸n de materiales y dise帽o permite mantener el car谩cter de la casa colonial en Colombia, pero con un estilo actualizado y adaptado a la vida actual.
Planta alta: zona privada de la casa.
En el segundo nivel se ubica la zona privada, dise帽ada para garantizar privacidad y confort. La distribuci贸n contempla cuatro dormitorios, incluyendo una rec谩mara principal amplia con ba帽o privado y vestidor.
Adem谩s, la planta alta incorpora una sala familiar que funciona como espacio de descanso o convivencia, as铆 como acceso al balc贸n que forma parte de la fachada principal.

La organizaci贸n del nivel superior incluye:
- Rec谩mara principal con vestidor y ba帽o.
- Dos dormitorios secundarios.
- Ba帽os completos.
- Sala familiar.
- Balc贸n con vista hacia el exterior.
Esta distribuci贸n permite que cada espacio tenga buena iluminaci贸n natural y una relaci贸n adecuada con el resto de la casa.

Una casa colonial en Colombia que integra arquitectura y naturaleza
Uno de los aspectos m谩s distintivos de esta casa es el patio interior con fuente y vegetaci贸n, el cual funciona como un elemento central del dise帽o. Este espacio no solo aporta valor est茅tico, sino que tambi茅n mejora el confort t茅rmico y la calidad ambiental.
Conclusi贸n
En conjunto, este proyecto de casa colonial en Colombia logra un equilibrio entre tradici贸n arquitect贸nica, funcionalidad y dise帽o contempor谩neo. La integraci贸n de espacios sociales amplios, 谩reas privadas confortables y un patio central convierte a esta casa en una propuesta residencial completa, ideal para familias que buscan una casa con car谩cter, elegancia y conexi贸n con la naturaleza.

